Bishop’s Palace
At the western edge of the city center, close to the slope of Kaletepe (also called the “theater hill”), there is an insula with a rich history of construction. The southern half of this city block already housed the Temple of Dionysus in the Hellenistic period, which gradually made way for the St. Michael Basilica during the Byzantine period. Little is known about the early building phases in the northern half of the insula. What is certain is that a large peristyle house (a residential house with a large inner courtyard) was built here during the late Roman Empire and expanded into a Byzantine residence, the Bishop’s Palace, later.
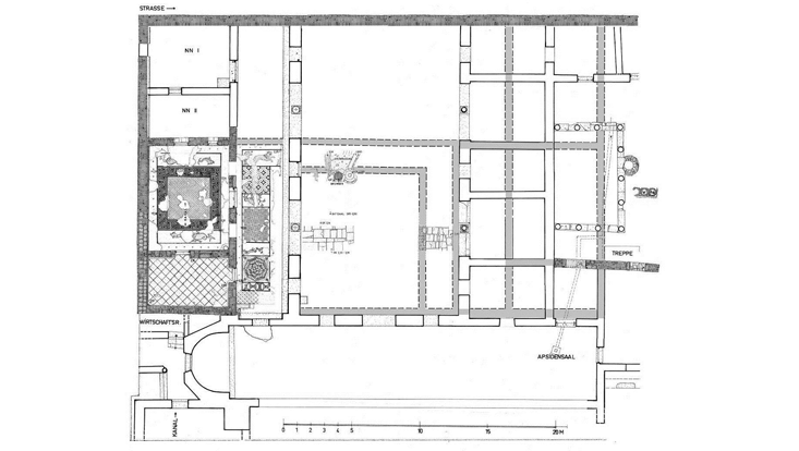
The rooms decorated with large mosaics, still visible in their original location today, indicate that this used to be the residence of an influential person who had even been allowed to extend their property to the adjacent streets and build on them. Because of the building’s immediate proximity to the St. Michael Basilica, its architectural properties and written records, this person has been identified as a bishop and the building has been named accordingly.
At the center of the Bishop’s Palace, there is a large and central hall with a marble floor. Many rooms of various designs adjoin it on each long side. The excavations and the resulting finds date its origin to the fifth century, meaning that the expansion and conversion of the late Roman house into a residence must have begun at that time. Remarkably, some of the structures of the older peristyle house were built over, while others—such as the northern rooms and their mosaics—were integrated into the new residence. Equally interestingly, the inner courtyard (peristyle) was turned into a hall. This relatively unusual process in the construction of a Byzantine townhouse makes sense if the building is interpreted as an episcopal residence with a representative character: during the Byzantine period, it was common practice to have a long apse hall adjoining the western side of the residence as a representative entrance to the large main hall. The apse hall, too, was decorated with elaborate floor mosaics.
Text: Fabian Sliwka
References
-
W. Müller-Wiener, Milet 1987. Untersuchungen im Bischofspalast in Milet (1977–1979), IstMitt 38, 1988, 279–290.
-
P. Niewöhner, Der Bischofspalast von Milet. Late Roman peristyle house and Early Byzantine residence, AA 2015/2, 181–273.
-
P. Niewöhner, Milet/Balat (Istanbul 2016) 49–50.


